Coppin State University
College of Business

The Center for Strategic Entrepreneurship (CSE) is an exciting new home for the College of Business. Our design transforms and expands an existing mid-century campus building, providing the college with unique facilities to help catalyze socioeconomic advancement in its West Baltimore community.
-
Location
Size
Program
Practice area
Certifications
A gateway to education and opportunity
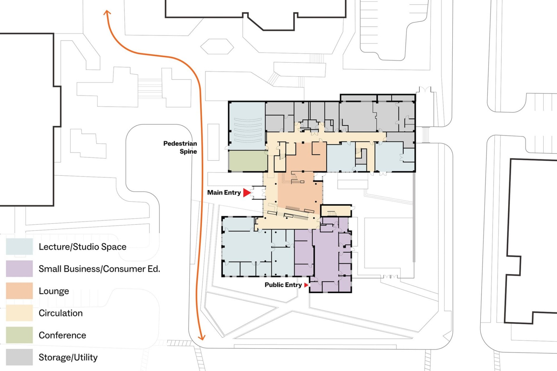
The Center for Strategic Entrepreneurship (CSE) provides a state-of-the-art learning facility for students and faculty and expands the college’s community-serving mission. Computer labs, study spaces, career services, and a cafe provide a welcoming, supportive environment for students, many of whom work and take courses at night. Community outreach programs, such as Consumer Education (which offers free tax assistance) and the Small Business Development Center, are located on the first floor, accessible via a public entrance facing North Avenue.

Putting active learning on display
At the heart of the building, a glassy central Hub will provide an exciting view of business education in action. Surrounded by collaboration spaces, computer labs, and conference rooms, the Hub and its adjacent spaces will provide students, business leaders, and community members with technology-rich environments for collaborating on entrepreneurial endeavors.



-
5
computer labs clustered on the second floor, each with a unique collaborative layout to suit the needs of the class.
-
12,200
GSF expansion of the original building to accommodate its burgeoning business and sciences program
The CSE is well positioned to spur innovation across our campus and community. The college is looking forward to leading the conversation on entrepreneurship and will provide business support for founders, early-stage ideas, and small businesses that are looking for capital and advisement.
For more information about this project:
Share this project:
Collaborator
Quinn Evans Architects
Project Team
A+F Engineers
Carroll Engineering
Convergent Technologies Design Group
Forella Group
James Posey Associates
KES Engineering
Mahan Rykiel Associates
SaLUT-TLB