Skip to Content

Fairfield University
Barone Campus Center

When Fairfield University came to us with ambitions to improve its main dining hall, we saw an opportunity to renew the existing facility while significantly expanding an essential community-building space at the heart of campus. Together, we turned a congested and largely inaccessible space into a source of pride on campus.

  • Location

    Size

    Program

    Practice area

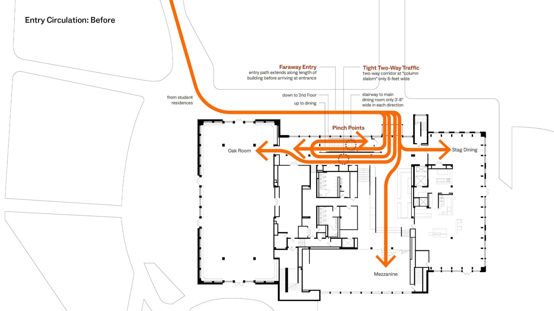
Looking to enhance access, efficiency, and equity of usage for the new campus center, we conducted a careful analysis of the site, considering everything from congestion points to enrollment projections and the need for additional private seating areas for meetings and events. From there, the team drew up a comprehensive phasing plan that enabled the project to unfold without disrupting Fairfield’s year-round on-campus meal service.

The result: a welcoming, spacious, fully-accessible 710-seat dining room, servery, and flexible social space that encourages the Fairfield community to continue its tradition of sharing meals together under one roof.

A transparent addition provides panoramic views of the campus entrance.

Untangling Circulation

Prior to our intervention, circulation paths were congested and inaccessible. The renovation provides a new campus-scale front door and an improved circulation spine.
Project impact
  • 710

    Seats in the newly renovated dining hall

  • 9 months

    Construction period, limiting downtime for campus dining and bringing the project in under budget

For more information about this project:

Share this project:

Photography

Robert Benson

Project Team

Blades & Goven

Bohler

Code Red

Collaborative Lighting

Envision Strategies

Kohler Ronan

Silman

Skanska

Vision Buildings and Design

Wil-Spec

Back to top